Refine Search
Location
Radius
Min Beds
Min Price
Min Price
Max Price
Max Price
Location
Radius
Min Beds
Min Price
Min Price
Max Price
Max Price
 

Chiswick Place, Eastbourne, BN21

Sold Subject To Contract

£350,000

3
1
2
Gallery (13)

Summary

GUIDE PRICE £350,000 TO £370,000 A surprisingly SPACIOUS THREE BEDROOM apartment, WEST TOWN CENTRE location with the benefit of TWO BALCONIES with SEA and DOWNLAND VIEWS. Situated on the SECOND FLOOR with LIFT and STAIR access. With generous accommodation which includes a 24' x 18' L-SHAPED SITTING/DINING ROOM which enjoys a wonderful TRIPLE ASPECT with VIEWS TOWARDS THE SEA and DOWNS. There are THREE good size BEDROOMS and this apartment also benefits from a GARAGE and PRIVATE STORE ROOM. VIEWING is strongly recommended to appreciate the EXCELLENT POSITION and FINE VIEWS. West House is enviably located just to the west of Eastbourne town centre and close to Eastbourne's seafront and popular theatres. The Town Centre provides the principal shopping thoroughfare and newly constructed Beacon Centre as well as mainline rail services to London Victoria. Sporting facilities in the area include both indoor and outdoor tennis, three golf courses and one of the largest sailing marinas in the South East.

Full Description

DETAILED ‘KEY FACTS FOR BUYERS’ ARE AVAILABLE IN THE LINK BELOW

Entrust Hunt Frame’s experienced property professionals with the sale of your property, delivering the highest standards of service and communication.

COMMUNAL ENTRANCE
Lift and stairs to the upper floors.

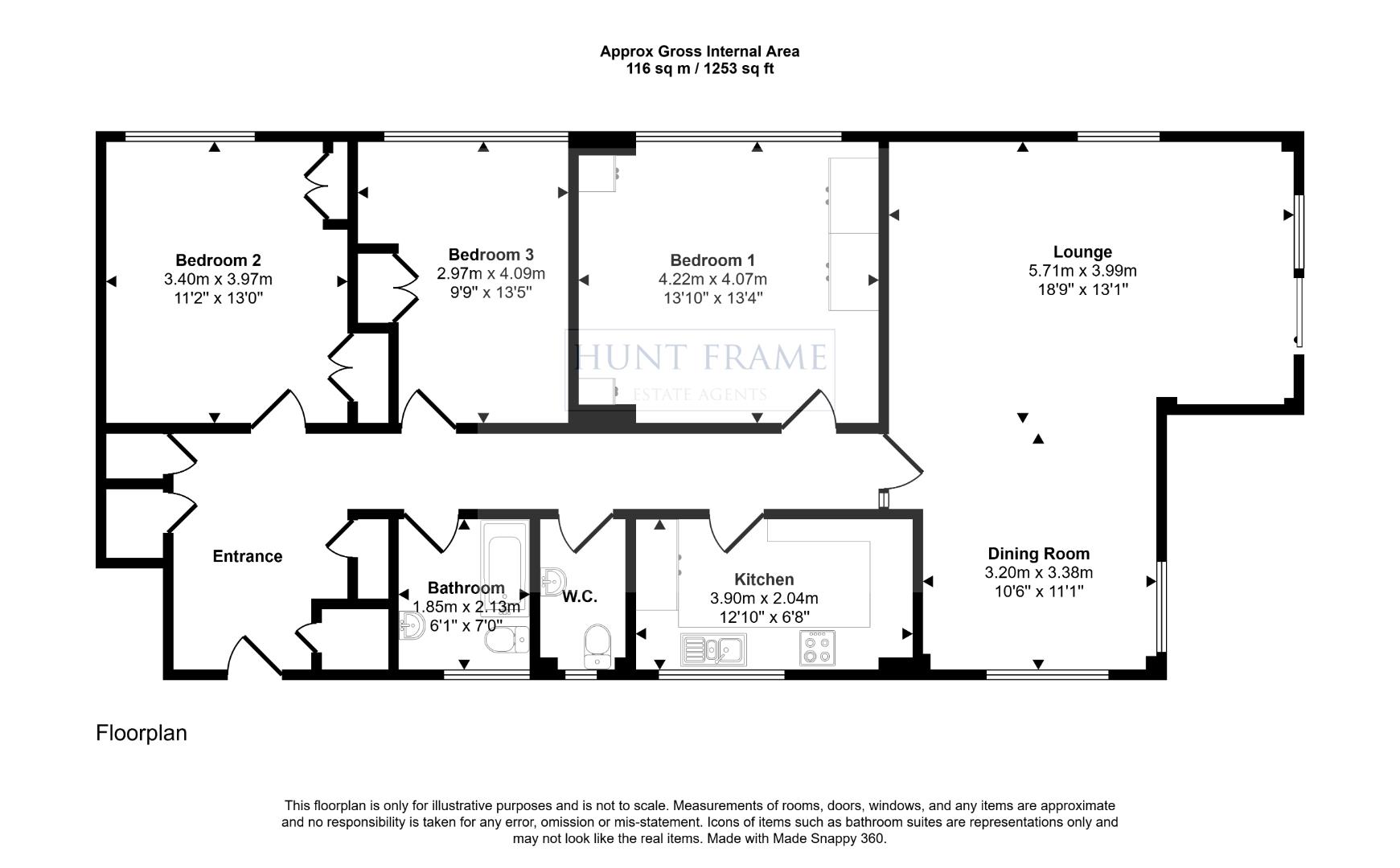
HALLWAY
Large L-shaped entrance hall with storage cupboards, entry phone system, radiator, doors off to the bedrooms, bathroom and receptions.

LOUNGE (5.72m x 3.99m (18'9 x 13'1))
Dual aspect with UPVC double glazed window to the side elevation with matching UPVC double glazed sliding doors overlooking and giving access to balcony one, open to the dining room, radiator.

BALCONY ONE
Steel and glass balustrading with an excellent vista to the beach and across the lawns at Devonshire Park.

DINING ROOM (3.38m x 3.20m (11'1 x 10'6))
Dual aspect with UPVC double glazed windows to the side and rear elevations with views across Devonshire Park and towards the South Downs.

KITCHEN (3.91m x 2.03m (12'10 x 6'8))
Contemporary refitted kitchen with a range of modern, contrasting floor standing and wall mounted units with complementary work top space, stainless steel sink unit with mixer tap and drainer, double electric eye level oven with induction hob and extractor fan with matching splashback, brick effect tiling to walls, integral fridge, dishwasher and washing machine, wall mounted concealed boiler, UPVC double glazed window to the side aspect.

BEDROOM ONE (4.22m x 4.06m (13'10 x 13'4))
With an extensive range of fitted furniture to include matching double wardrobes, over bed storage and matching bed side cabinets, further dresser and storage cupboard, radiator, sliding UPVC double glazed doors to the front aspect with access to balcony two.

BALCONY TWO
With glass and steel balustrading with an aspect down Chiswick Place towards the town, and up towards the theatres.

BEDROOM TWO (3.96m x 3.40m (13'0 x 11'2))
Two fitted storage cupboards, radiator, UPVC double glazed window to the front aspect.

BEDROOM THREE (4.09m x 2.97m (13'5 x 9'9))
Storage cupboard, radiator, UPVC double glazed window to the front aspect.

FAMILY BATHROOM
Comprising of a walk in shower facility with rainfall shower system and secondary attachments, low level Wc, wash hand basin set in a vanity unit with cupboards, fully tiled walls, mirror with adjacent cupboards, ladder style radiator.

SEPARATE CLOAKROOM
Comprising of a low level Wc, wash hand basin, heated towel rail, UPVC double glazed window to the rear aspect.

GARAGE & STORE ROOM
Situated to the rear and integral to the building.

OUTGOINGS
LEASE: 154 YEARS FROM 10TH OF JULY 2018 - 147 YEARS REMAINING
MAINTENANCE: APPROX £2284 PA
GROUND RENT: NIL
COUNCIL TAX BAND: D

ANTI MONEY LAUNDERING REGULATIONS
By law, we are required to conduct anti-money laundering checks on all potential buyers and sellers, and we take this responsibility very seriously. In line with HMRC guidelines, our trusted partner, Coadjute, will securely manage these checks on our behalf. Once an offer is accepted (subject to contract), Coadjute will send a secure link for you to complete the biometric checks electronically. A non-refundable fee of £45+ VAT per person will apply for these checks, and Coadjute will handle the payment for this service. These anti-money laundering checks must be completed before we can send the memorandum of sale to the solicitors to confirm the sale. Please contact the office if you have any questions in relation to this.

Disclaimer: Whilst every care has been taken preparing these particulars their accuracy
cannot be guaranteed and you should satisfy yourself as to their correctness. We have not been able to check outgoings, tenure, or that the services and equipment function properly, nor have we checked any planning or building regulations. They do not form part of any contract. We recommend that these matters and the title be checked by someone qualified to do so.

Viewing & Disclaimer

Viewing
Please contact us on 01323 737373 if you wish to arrange a viewing appointment for this property, or require further information.

Energy Performance Certificate
Click here to view the Energy Efficiency Rating and Environmental Impact Rating for this property.

Disclaimer
Hunt Frame - BN21 endeavour to maintain accurate depictions of properties in Virtual Tours, Floor Plans and descriptions, however, these are intended only as a guide and purchasers must satisfy themselves by personal inspection.

Key Features
  • GUIDE PRICE £350,000 TO £370,000
  • PURPOSE BUILT
  • SITTING ROOM
  • MODERN KITCHEN
  • THREE BEDROOMS
  • FAMILY BATHROOM
  • TWO BALCONIES
  • VIEWS
  • GARAGE
  • CLOSE TO THE TOWN CENTRE
IE8 Alert! Cookie Alert!

To get the best possible experience using our website we recommend you upgrade to a modern web browser. More info

Location
Radius
Min Beds
Min Price
Min Price
Max Price
Max Price
Location
Radius
Min Beds
Min Price
Min Price
Max Price
Max Price