Refine Search
Location
Radius
Min Beds
Min Price
Min Price
Max Price
Max Price
Location
Radius
Min Beds
Min Price
Min Price
Max Price
Max Price
 

Hartfield Road, Eastbourne, BN21

Available

Offers over £300,000

3
1
1
Gallery (11)

Summary

GUIDE PRICE £300,000 - £325,000 A most elegant and well proportioned period style converted flat occupying the GROUND FLOOR of this period style house located within half a mile of Eastbourne town centre. Retaining many character features and benefitting from THREE BEDROOMS and a PRIVATE REAR GARDEN. Offered for sale with the freehold, viewing is highly recommended.

Full Description

Communal front door to:

Communal Entrance Hall
Double glazed front door to:

Entrance Hall
Original ornate flooring, radiator, under stairs storage cupboard, ornate cornice, picture rail.

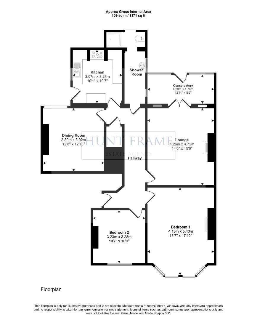
Lounge (4.72m x 4.27m (15'6 x 14'))
Original period style fireplace, ornate cornice, picture rail, TV point, double glazed windows and french doors leading to:

Conservatory (4.24m x 1.75m (13'11 x 5'9))
Ornate original tiling, double glazed windows and door leading to rear garden.

Kitchen (3.23m x 3.07m (10'7 x 10'1))
Fitted in a range of wall nod base mounted cupboards and drawers. Work tops with inset 1 1/2 bowl stainless steel sink and single drainer unit with mixer tap. Exposed brick chimney breast. Built in oven, gas hob and extractor hood. Spaces for washing machine and fridge/freezer. Quarry tiled floor, double window and door to side access.

Bedroom One (5.44m x 4.14m (17'10 x 13'7))
Radiator, cornice, double glazed bay window to front, picture rail.

Bedroom Two (3.23m x 3.28m (10'7 x 10'9))
Radiator, cornice, picture rail, double glazed window to front.

Bedroom Three (3.91m x 3.81m (12'10 x 12'6))
(Currently used as a dining room), picture rail, ceiling rose, double glazed window to rear.

Shower Room
In a white suite comprising tiled shower cubicle, low level wc, pedestal wash basin, part tiled walls, heated chrome towel ladder, recessed spot lighting, two double glazed windows to side.

OUTSIDE
Private wall enclosed front garden, laid to lawn with flower beds.

Private rear garden with brick paviour patio area leading to a level lawn with garden store, flower and shrub borders, walled surround and side access.

TO INCLUDE THE FREEHOLD OF THE BUILDING.
LEASE: 148 YEARS REMAINING
MAINTENANCE: 50% AS AND WHEN

COUNCIL TAX BAND: C

AGENTS NOTE
By law, we are required to conduct anti-money laundering checks on all potential buyers and sellers, and we take this responsibility very seriously. In line with HMRC guidelines, our trusted partner, Coadjute, will securely manage these checks on our behalf. Coadjute will send a secure link for you to complete the biometric checks electronically. A fee of £45+ VAT per person will apply for these checks. These anti-money laundering checks must be completed before we can commence marketing or issue a sales memo. Please contact the office if you have any questions in relation to this.

Viewing & Disclaimer

Viewing
Please contact us on 01323 737373 if you wish to arrange a viewing appointment for this property, or require further information.

Energy Performance Certificate
Click here to view the Energy Efficiency Rating and Environmental Impact Rating for this property.

Disclaimer
Hunt Frame - BN21 endeavour to maintain accurate depictions of properties in Virtual Tours, Floor Plans and descriptions, however, these are intended only as a guide and purchasers must satisfy themselves by personal inspection.

Key Features
  • GUIDE PRICE £300,000 - £325,000
  • ELEGANT PERIOD STYLE GROUND FLOOR FLAT
  • LOUNGE AND CONSERVATORY
  • THREE BEDROOMS
  • 10'7 X 10'1 KITCHEN
  • GAS CENTRAL HEATING
  • DOUBLE GLAZING
  • PRIVATE FRONT AND REAR GARDENS
  • MANY ORIGINAL CHARACTER FEATURES
IE8 Alert! Cookie Alert!

To get the best possible experience using our website we recommend you upgrade to a modern web browser. More info

Location
Radius
Min Beds
Min Price
Min Price
Max Price
Max Price
Location
Radius
Min Beds
Min Price
Min Price
Max Price
Max Price