Refine Search
Location
Radius
Min Beds
Min Price
Min Price
Max Price
Max Price
Location
Radius
Min Beds
Min Price
Min Price
Max Price
Max Price
 

Galveston Close, Eastbourne, BN23

Sold Subject To Contract

£400,000

4
2
2
Gallery (15)

Summary

GUIDE PRICE £400,000 TO £420,000A DETACHED, CHAIN FREE FAMILY HOME in the ever popular Sovereign Harbour area of Eastbourne with comfortable FOUR BEDROOM accommodation across two floors. The property benefits from TWO RECEPTION ROOMS, a UTILITY ROOM, KITCHEN/BREAKFAST ROOM and WC to the ground floor with the four bedrooms and FAMILY BATHROOM to the first floor. In addition there are enclosed, level GARDENS, an INTEGRAL GARAGE and OFF ROAD PARKING. This property is situated in a desirable residential cul-de-sac, situated on Sovereign Harbour South. Family days out at the beach are just up the road, and The Waterfront offers a range of restaurants, shops and gym. A choice of good schools are within easy reach. Eastbourne Town Centre is approximately two miles away.

Full Description

DETAILED ‘KEY FACTS FOR BUYERS’ ARE AVAILABLE IN THE LINK BELOW

Entrust Hunt Frame’s experienced property professionals with the sale or letting of your property, delivering the highest standards of service and communication.

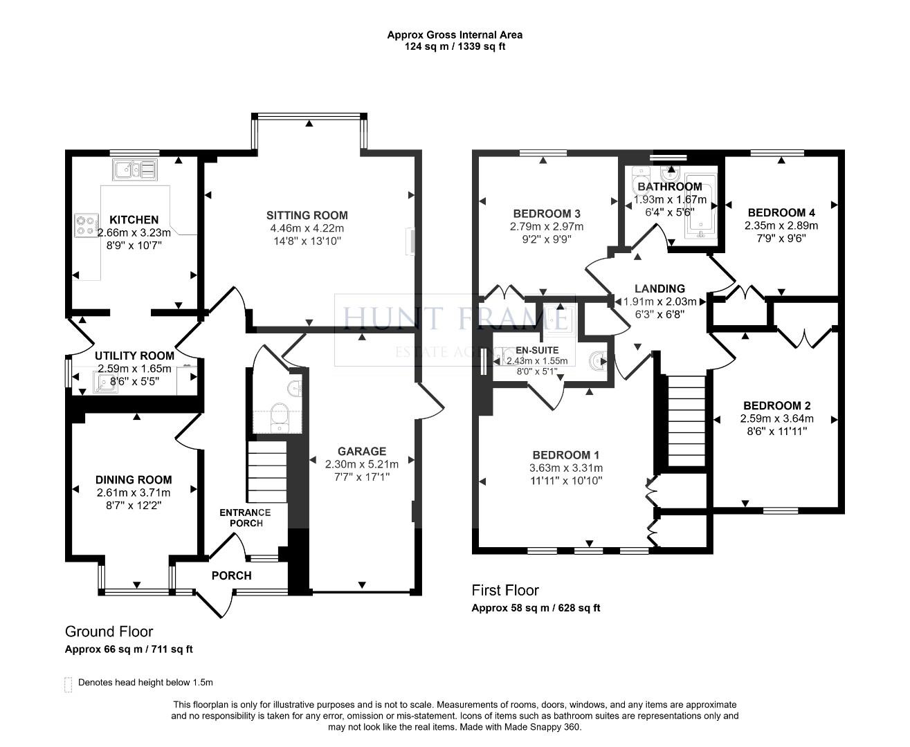
ENTRANCE PORCH
Enclosed entrance porch with a UPVC double glazed entrance door with fixed double glazed panels to the side, quarry tiled flooring, wooden and glazed door to the hallway.

HALLWAY
Radiator, staircase raising to the first floor, personal door to the garage, further doors off to the sitting and dining rooms, utility room and cloakroom.

SITTING ROOM (4.47m x 4.22m (14'8 x 13'10))
UPVC double glazed bay window to the rear aspect with double opening french doors overlooking and giving access to the gardens, wooden fire place surround with matching mantle and hearth, radiator with ornamental cover.

DINING ROOM (3.71m x 2.62m (12'2 x 8'7))
UPVC double glazed window to the front aspect, radiator.

UTILITY ROOM (2.59m x 1.65m (8'6 x 5'5))
UPVC double glazed door to the side aspect with adjacent double glazed window, fitted cupboards with worktop space, inset sink, tiled splashbacks, plumbing and space for a washing machine, further under counter appliance space, archway to the kitchen.

KITCHEN (3.23m x 2.67m (10'7 x 8'9))
Fitted with a matching range of wall mounted and floor standing units with worktop space, inset sink unit, electric single oven with a four ring gas hob and extractor unit over, tiled splashbacks, plumbing and space for a dishwasher, radiator, space for a breakfast table, space for an upright fridge/freezer, UPVC double glazed window to the rear aspect.

CLOAKROOM
Comprising of a low level wc with a wall mounted wash hand basin, tiled splashback, radiator, extractor fan.

LANDING
First floor landing with loft access and airing cupboard, doors off to the bedrooms and bathroom.

BEDROOM 1 (3.63m x 3.30m (11'11 x 10'10))
Matching UPVC double glazed windows to the front aspect, fitted wardrobe with mirrored doors, radiator, door to the en-suite.

EN-SUITE
Comprising of a shower enclosure with shower unit, fully tiled, wash hand basin set in a vanity unit with cupboards, radiator, UPVC double glazed window to the side aspect.

BEDROOM 2 (3.63m x 2.59m (11'11 x 8'6))
UPVC double glazed window to the front aspect, fitted wardrobes with hinged doors, radiator.

BEDROOM 3 (2.97m x 2.79m (9'9 x 9'2))
UPVC double glazed window to the rear aspect, fitted wardrobe with hinged doors, radiator.

BEDROOM 4 (2.90m x 2.36m (9'6 x 7'9))
UPVC double glazed window to the rear aspect, radiator, fitted wardrobe.

FAMILY BATHROOM
Comprising of a suite with a panelled bath with shower attachment, low level Wc and wash hand basin, part tiled walls, radiator, UPVC double glazed window to the rear aspect.

GARDEN
Part paved terrace with display borders, trees and shrubs, fenced boundaries, gated side access.

GARAGE & PARKING
Integral garage with personal door to the hallway, up and over door to the front, power and light, wall mounted boiler, water supply, glazed door to the side access. Off road parking to the front of the property.

OUTGOINGS
There is an annual harbour charge for this property, this has been paid for 2026 which currently amounts to £295:50.

ANTI MONEY LAUNDERING REGULATIONS
By law, we are required to conduct anti-money laundering checks on all potential buyers and sellers, and we take this responsibility very seriously. In line with HMRC guidelines, our trusted partner, Coadjute, will securely manage these checks on our behalf. Once an offer is accepted (subject to contract), Coadjute will send a secure link for you to complete the biometric checks electronically. A non-refundable fee of £45+ VAT per person will apply for these checks, and Coadjute will handle the payment for this service. These anti-money laundering checks must be completed before we can send the memorandum of sale to the solicitors to confirm the sale. Please contact the office if you have any questions in relation to this.

Disclaimer: Whilst every care has been taken preparing these particulars their accuracy
cannot be guaranteed and you should satisfy yourself as to their correctness. We have not been able to check outgoings, tenure, or that the services and equipment function properly, nor have we checked any planning or building regulations. They do not form part of any contract. We recommend that these matters and the title be checked by someone qualified to do so.

Viewing & Disclaimer

Viewing
Please contact us on 01323 737373 if you wish to arrange a viewing appointment for this property, or require further information.

Energy Performance Certificate
Click here to view the Energy Efficiency Rating and Environmental Impact Rating for this property.

Disclaimer
Hunt Frame - BN21 endeavour to maintain accurate depictions of properties in Virtual Tours, Floor Plans and descriptions, however, these are intended only as a guide and purchasers must satisfy themselves by personal inspection.

Key Features
  • GUIDE PRICE £400,000 TO £420,000
  • DETACHED HOUSE
  • VIRTUAL TOUR
  • FOUR BEDROOMS
  • TWO RECEPTIONS
  • TWO BATHROOMS
  • KITCHEN/BREAKFAST ROOM
  • UTILITY ROOM
  • GARAGE & PARKING
  • CHAIN FREE
IE8 Alert! Cookie Alert!

To get the best possible experience using our website we recommend you upgrade to a modern web browser. More info

Location
Radius
Min Beds
Min Price
Min Price
Max Price
Max Price
Location
Radius
Min Beds
Min Price
Min Price
Max Price
Max Price