Refine Search
Location
Radius
Min Beds
Min Price
Min Price
Max Price
Max Price
Location
Radius
Min Beds
Min Price
Min Price
Max Price
Max Price
 

Bermuda Place, Eastbourne, BN23

Sold Subject To Contract

OIEO £550,000

4
2
4
Gallery (23)

Summary

HUNT FRAME ESTATE AGENTS are proud to offer this LOVELY HOME, located in this EXCLUSIVE position, directly on the edge of the OUTER HARBOUR with STUNNING COASTAL & HARBOUR VIEWS. This IMMACULATELY PRESENTED, RECONFIGURED TOWN HOUSE extends to approximately 2,100 sq ft in size and offers EXCELLENT VERSATILITY across four floors with FOUR DOUBLE BEDROOMS with FOUR EN-SUITES, a STUNNING OPEN PLAN KITCHEN/DINER & LIVING ROOM with a separate UTILITY ROOM, BATHROOM and GARAGE. CHAIN FREE with VIRTUAL TOUR.The property forms part of the exclusive South Harbour development and is enviably located with direct access to the beach as well as other harbour amenities which include a variety of restaurants, boutiques and a large retail park. Eastbourne town centre is approximately 4 mile distant and provides extensive shopping facilities at the Beacon centre as well as mainline rail services to London Victoria and to Gatwick. Sporting facilities in the area include 3 principal golf courses, tennis at David Lloyd Centre and one of the largest sailing marinas on the south coast.

Full Description

DETAILED ‘KEY FACTS FOR BUYERS’ ARE AVAILABLE IN THE LINK BELOW

Entrust Hunt Frame’s experienced property professionals with the sale or letting of your property, delivering the highest standards of service and communication.

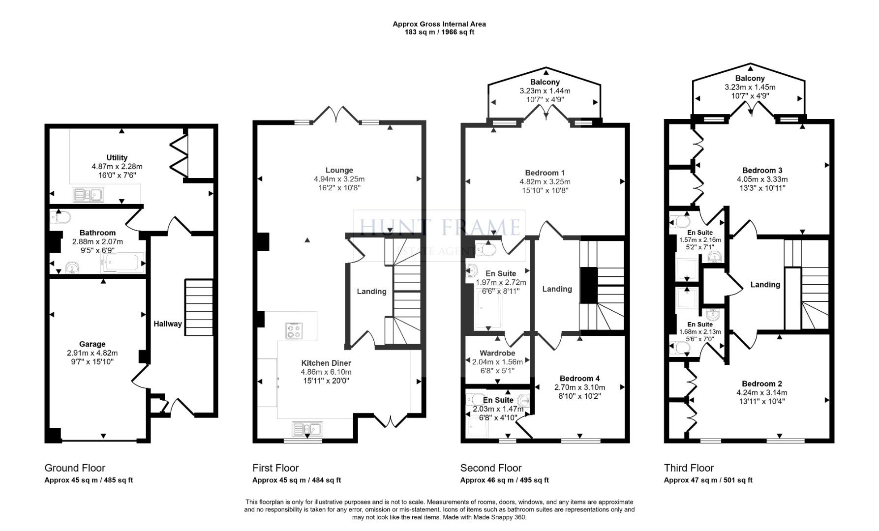
ENTRANCE HALL
UPVC double glazed entrance door into the hallway, storage cupboard, radiator, personal door to the garage, under stair storage area, door to the utility room.

UTILITY ROOM (4.88m x 2.29m (16'0 x 7'6))
Range of storage cupboards with a large kitchen area with floor standing and wall mounted units, inset sink unit with a tiled splashback, plumbing and space for a washer and dryer, tiled flooring, door to the bathroom.

BATHROOM (2.87m x 2.06m (9'5 x 6'9))
Bathroom with Jacuzzi bath, low level WC, pedestal wash hand basin, upright ladder style radiator, recessed ceiling lighting, extractor fan, part tiling walls.

FIRST FLOOR LANDING
Landing with radiator, doors to the reception/kitchen, feature coloured glass block wall.

KITCHEN/DINER (6.10m x 4.85m (20'0 x 15'11))
Extensive range of floor standing and wall mounted cupboards with quartz worktops, inset sink unit with Swan neck mixer tap, breakfast bar area with radiator, UPVC double glazed doors allowing access onto the front balcony and terrace, fitted Zanussi double ovens, matching upstands, integral fridge/freezer, pull out in storage/waste system, integral dishwasher, tiled flooring, fitted wine rack, recessed ceiling lighting, induction hob with a FABER contemporary induction/extractor system, open to the dining area with radiator, matching flooring open to the sitting room.

SITTING ROOM (4.93m x 3.25m (16'2 x 10'8))
Wood effect flooring, TV point, radiator UPVC double glazed windows to the rear with matching double opening doors that lead onto the lovely terrace/rear garden.

SECOND FLOOR LANDING

BEDROOM 1 (4.83m x 3.25m (15'10 x 10'8))
Double bedroom, radiator, door to the en-suite, with UPVC double glazed windows to the rear with matching double opening French doors that open onto the BALCONY with stunning, far reaching coastal and harbour views.

EN-SUITE
Featuring a large walking shower cubicle with curved screen being fully tiled with rainfall shower unit, low-level WC, wash hand basin, fully tiled walls and floor, upright ladder style radiator, extractor fan, door to the DRESSING ROOM with hanging and shelving space.

BEDROOM 4 (3.10m x 2.69m (10'2 x 8'10))
UPVC double glazed window to the front elevation, radiator, door to the en-suite.

EN-SUITE
Comprising of a shower cubicle with shower unit, low level WC, pedestal wash hand basin, part tiling to walls, radiator, UPVC double glazed window to the front aspect.

THIRD FLOOR LANDING

BEDROOM 2 (4.24m x 3.10m (13'11 x 10'2))
Front aspect, two double glazed windows overlooking the front, matching fitting double wardrobes, radiator, door to the en-suite.

EN-SUITE
Comprising of an enclosed shower cubicle, pedestal wash hand basin, radiator, low-level WC, part tiling to the walls, shaver point, extractor fan.

BEDROOM 3 (4.04m x 3.33m (13'3 x 10'11))
With matching fitted double wardrobes, radiator, UPVC double glazed windows to the rear elevation with matching double opening French doors giving access to the BALCONY with dIrect Harbour and coastal views.

EN-SUITE
Comprising of an enclosed shower cubicle, being fully tiled with a hinged door to the front with shower unit, pedestal wash hand basin, low level WC, part tiling to walls, radiator, extractor fan.

REAR GARDEN
Accessed from the sitting room being fully paved with a gate that leads directly onto the rear promenade, superb direct views over the harbour and coast beyond.

ELEVATED FRONT TERRACE
Accessed from the main entrance and first floor, providing a large, sheltered seating area.

OFF ROAD PARKING
Off road parking for a single vehicle.

GARAGE (4.83m x 2.92m (15'10 x 9'7))
Up and over door to the front, power and light, personal door to the hallway.

OUTGOINGS
Harbour charge & Sea defence £345.60 per annum (TBC)
Maintenance Charge £131.00 (approx) every six months (TBC)

Disclaimer: Whilst every care has been taken preparing these particulars their accuracy
cannot be guaranteed and you should satisfy yourself as to their correctness. We have not been able to check outgoings, tenure, or that the services and equipment function properly, nor have we checked any planning or building regulations. They do not form part of any contract. We recommend that these matters and the title be checked by someone qualified to do so.

Viewing & Disclaimer

Viewing
Please contact us on 01323 737373 if you wish to arrange a viewing appointment for this property, or require further information.

Energy Performance Certificate
Click here to view the Energy Efficiency Rating and Environmental Impact Rating for this property.

Disclaimer
Hunt Frame - BN21 endeavour to maintain accurate depictions of properties in Virtual Tours, Floor Plans and descriptions, however, these are intended only as a guide and purchasers must satisfy themselves by personal inspection.

Key Features
  • VIRTUAL TOUR
  • STUNNING HARBOUR & COASTAL VIEWS
  • STUNNING KITCHEN/DINER/SITTING ROOM
  • FOUR DOUBLE BEDROOMS
  • FOUR EN-SUITES
  • BATHROOM
  • UTILITY ROOM
  • ELEVATED FRONT TERRACE
  • GARAGE & PARKING
  • CHAIN FREE
IE8 Alert! Cookie Alert!

To get the best possible experience using our website we recommend you upgrade to a modern web browser. More info

Location
Radius
Min Beds
Min Price
Min Price
Max Price
Max Price
Location
Radius
Min Beds
Min Price
Min Price
Max Price
Max Price