Refine Search
Location
Radius
Min Beds
Min Price
Min Price
Max Price
Max Price
Location
Radius
Min Beds
Min Price
Min Price
Max Price
Max Price
 

Admiralty Court, Eastbourne, BN23

Available

£299,950

2
1
2
Gallery (21)

Summary

HUNT FRAME ESTATE AGENTS are proud to offer this STUNNING TOP (THIRD) FLOOR APARTMENT with MAGNIFICENT, UNINTERUPPTED COASTAL VIEWS (with VIRTUAL TOUR). Enjoying TWO DOUBLE BEDROOM ACCOMMODATION with an EN-SUITE and FAMILY BATHROOM. Also benefitting from a SPACIOUS SITTING ROOM, again with LOVELY VIEWS which has direct access to the BALCONY (as does the master bedroom). The KITCHEN/BREAKFAST ROOM has been refitted in recent times and overall the apartment is a superb example of a frontline apartment within the highly sought after marina development.Nestled along the scenic coastline, residents can enjoy breath-taking sea views and direct access to the beach, making it an ideal setting for those who appreciate waterfront living. The vibrant Sovereign Harbour Marina, just a short stroll away, boasts an array of waterside restaurants, cafés, and boutique shops, creating a lively yet relaxed atmosphere for socializing and leisure. The Crumbles Retail Park is also within easy reach, offering a selection of supermarkets, high-street stores, and other amenities. The town centre and mainline train station are just a short drive away, providing excellent transport links to London, Brighton, and surrounding areas.

Full Description

DETAILED ‘KEY FACTS FOR BUYERS’ ARE AVAILABLE IN THE LINK BELOW

Entrust Hunt Frame’s experienced property professionals with the sale or letting of your property, delivering the highest standards of service and communication.

COMMUNAL ENTRANCE
Staircase and lift to the upper floors, third (top) floor entrance, door with spy hole into the hallway.

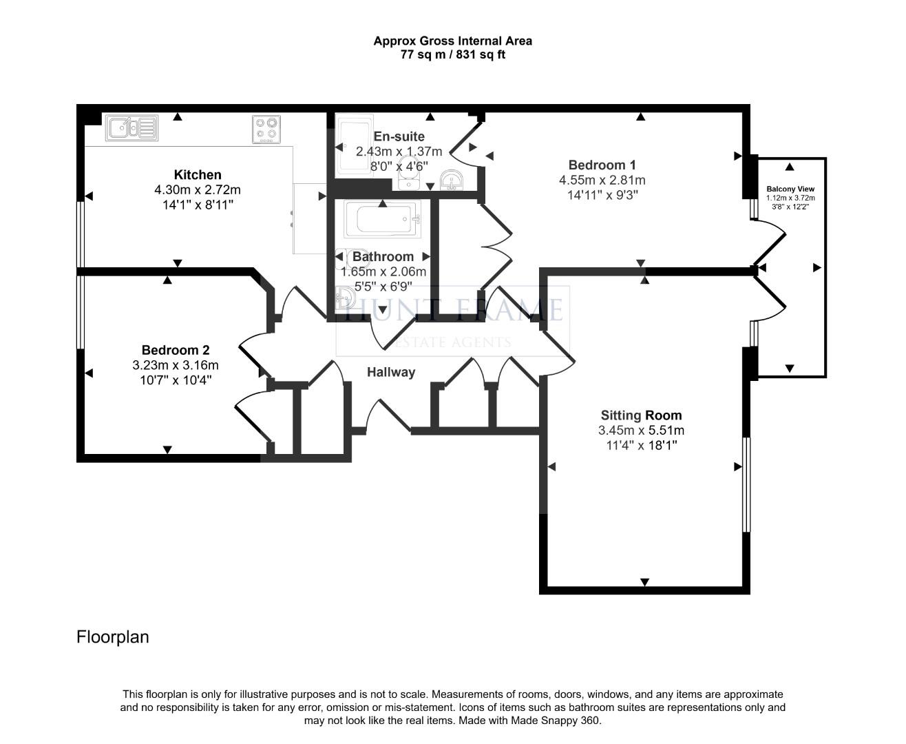
HALLWAY
T-shaped hallway with radiator, entry phone system, loft access, three large storage cupboards, one housing the replaced boiler, doors off to the sitting room, both bedrooms, bathroom and kitchen.

SITTING ROOM (5.51m x 3.45m (18'1 x 11'4))
Sitting/dining room, updated, contemporary radiator, UPVC double glazed window with lovely direct coastal views, adjacent glazed panel and UPVC double glazed door opening onto the balcony.

BALCONY (3.71m x 1.12m (12'2 x 3'8))
Accessed via the sitting room and master bedroom, space for seating, superb direct coastal views, across Eastbourne to the West and Bexhill, Hastings and beyond to the East.

REFITTED KITCHEN (4.29m x 2.72m (14'1 x 8'11))
Refitted in recent times with an excellent range of modern contrasting floor standing and wall mounted units with features which include a glazed display cabinet and wine rack, integrated fridge/freezer, dishwasher, washing machine and dryer, inset one and a half bowl sink unit with a swan neck mixer tap and drainer, granite work surfaces, space for a breakfast/dining table, tiled flooring, radiator, double glazed window overlooking the front gardens, eye level oven with a Hotpoint four ring induction hob with a canopied stainless steel extractor above with matching splashback, recessed ceiling lighting.

MASTER BEDROOM (4.55m x 2.82m (14'11 x 9'3))
Master bedroom with recessed fitted double wardrobes, radiator, double glazed window with matching door allowing access onto the balcony, door to the en-suite.

EN-SUITE
Comprising of a large shower cubicle with a sliding door to the front with a fitted shower unit, low-level WC with concealed cistern, wash hand basin set in a vanity unit with cupboards beneath, adjacent mirror with lighting above, shaver point, fully tiled to the walls and floor, upright ladder style radiator.

BEDROOM 2 (3.23m x 3.15m (10'7 x 10'4))
Double glazed window to the front elevation, recessed fitted wardrobe, radiator, distant views towards the South Downs and beyond.

FAMILY BATHROOM
Comprising of a large panelled bath with mixer tap over, WC with a concealed cistern, wash hand basin with vanity cupboards underneath, mirror above with lighting and shaver point, upright ladder style radiator, fully tiled walls, extractor fan, tiled flooring.

OUTSIDE
There are communal gardens both to the rear and front of the building and covered allocated parking, accessed via remote controlled operated gates with pedestrian access to the rear.

OUTGOINGS
LEASE: 999 YEARS FROM 01/01/2003 976 YEARS REMAINING
MAINTENANCE FOR 2025: £2690 PER ANNUM
GROUND RENT: £150 PER ANNUM
HARBOUR CHARGES: £345.60 PER ANNUM
FISHERMANS VILLAGE SERVICE CHARGE: £86 PER ANNUM
COUNCIL TAX BAND: E

Disclaimer: Whilst every care has been taken preparing these particulars their accuracy
cannot be guaranteed and you should satisfy yourself as to their correctness. We have not been able to check outgoings, tenure, or that the services and equipment function properly, nor have we checked any planning or building regulations. They do not form part of any contract. We recommend that these matters and the title be checked by someone qualified to do so.

Viewing & Disclaimer

Viewing
Please contact us on 01323 737373 if you wish to arrange a viewing appointment for this property, or require further information.

Energy Performance Certificate
Click here to view the Energy Efficiency Rating and Environmental Impact Rating for this property.

Disclaimer
Hunt Frame - BN21 endeavour to maintain accurate depictions of properties in Virtual Tours, Floor Plans and descriptions, however, these are intended only as a guide and purchasers must satisfy themselves by personal inspection.

Key Features
  • VIRTUAL TOUR
  • STUNNING COASTAL VIEWS
  • SITTING ROOM
  • BALCONY
  • REFITTED KITCHEN
  • MASTER BEDROOM
  • EN-SUITE
  • DOUBLE SECOND BEDROOM
  • FAMILY BATHROOM
  • ALLOCATED PARKING
IE8 Alert! Cookie Alert!

To get the best possible experience using our website we recommend you upgrade to a modern web browser. More info

Location
Radius
Min Beds
Min Price
Min Price
Max Price
Max Price
Location
Radius
Min Beds
Min Price
Min Price
Max Price
Max Price