Refine Search
Location
Radius
Min Beds
Min Price
Min Price
Max Price
Max Price
Location
Radius
Min Beds
Min Price
Min Price
Max Price
Max Price
 

The Crescent, Eastbourne, BN20

Sold Subject To Contract

£285,000

3
2
1
Gallery (12)

Summary

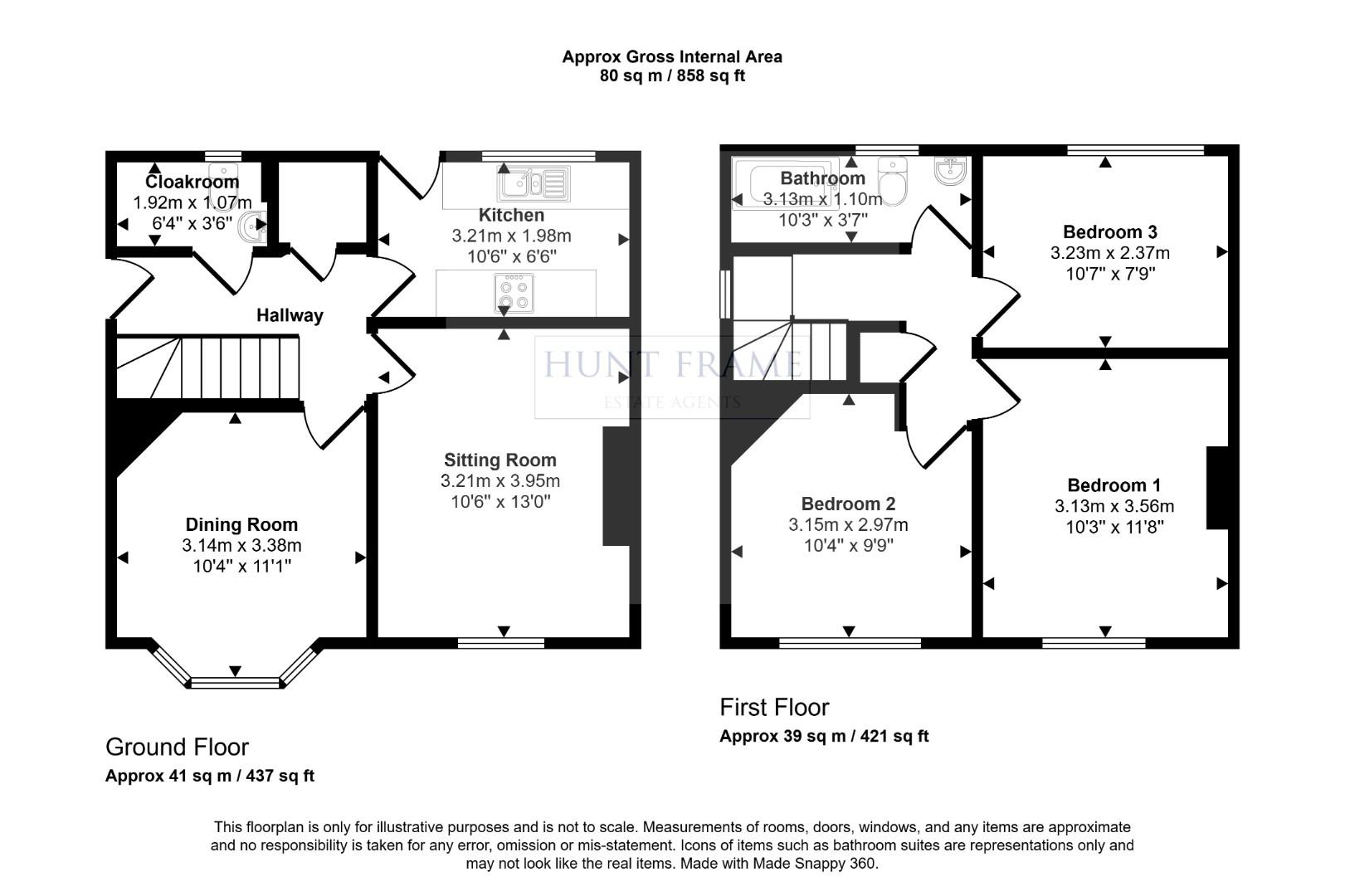
A SEMI-DETACHED FAMILY HOUSE with WELL PROPORTIONED ACCOMMODATION across two floors. Enjoying both SITTING & DINING ROOMS, along with a KITCHEN and CLOAKROOM/UTILITY to the ground floor. The first floor is no less impressive with THREE GOOD SIZED BEDROOMS and a FAMILY BATHROOM. Outside there are SIDE & REAR GARDENS as well as OFF ROAD PARKING to the front.Positioned in the favoured OLD TOWN area of Eastbourne , thus being WELL LOCATED FOR POPULAR LOCAL SCHOOLS AND SHOPS, the house is being sold CHAIN FREE. Viewing is considered essential. Sole Agents.

Full Description

DETAILED ‘KEY FACTS FOR BUYERS’ ARE AVAILABLE IN THE LINK BELOW

Entrust Hunt Frame’s experienced property professionals with the sale or letting of your property, delivering the highest standards of service and communication.

ENTRANCE
UPVC glazed entrance door into the hallway.

ENTRANCE HALL
Storage cupboard, under stair storage, staircase to the first floor, doors off to both reception rooms, kitchen and cloakroom.

SITTING ROOM (3.96m x 3.20m (13'0 x 10'6))
UPVC double glazed window to the front aspect, radiator.

DINING ROOM (3.38m x 3.15m (11'1 x 10'4))
UPVC double glazed bay window to the front aspect, radiator.

KITCHEN (3.20m x 1.98m (10'6 x 6'6))
Fitted with a modern range of wall mounted and floor standing units with wood effect roll edged worktops with matching upstands, inset stainless steel sink unit with a mixer tap and drainer, single electric oven with a four ring gas hob and extractor unit over, radiator, UPVC double glazed window overlooking the rear gardens with a matching door giving access to the same.

CLOAKROOM
Comprising of a low level Wc with a wall mounted wash hand basin, appliance spaces, UPVC double glazed window to the rear aspect.

FIRST FLOOR
Staircase rising to the first floor, loft access, doors off to the three bedrooms and bathroom.

BEDROOM 1 (3.56m x 3.12m (11'8 x 10'3))
UPVC double glazed window to the front aspect, radiator, space for free standing furniture.

BEDROOM 2 (3.15m x 2.74m (10'4 x 9'98))
UPVC double glazed window to the front aspect, radiator.

BEDROOM 3 (3.23m x 2.36m (10'7 x 7'9))
UPVC double glazed window to the rear aspect, radiator.

BATHROOM
Comprising of a panelled bath with twin headed shower system, low level Wc, wash hand basin, part tiled walls, radiator, UPVC double glazed patterned window to the rear.

GARDENS
Being on a corner plot the gardens extend both to the rear and side aspects with gated access to the front. The rear gardens enjoy a raised terraced seating area with a timber storage shed, the side gardens are laid to lawn with fence and hedge lined boundaries, which ensure a good level of privacy.

OFF ROAD PARKING
Off road parking for two vehicles with a gate and path that leads to the entrance door.

ANTI MONEY LAUNDERING REGULATIONS
By law, we are required to conduct anti-money laundering checks on all potential buyers and sellers, and we take this responsibility very seriously. In line with HMRC guidelines, our trusted partner, Coadjute, will securely manage these checks on our behalf. Once an offer is accepted (subject to contract), Coadjute will send a secure link for you to complete the biometric checks electronically. A non-refundable fee of £45+ VAT per person will apply for these checks, and Coadjute will handle the payment for this service. These anti-money laundering checks must be completed before we can send the memorandum of sale to the solicitors to confirm the sale. Please contact the office if you have any questions in relation to this.

Disclaimer: Whilst every care has been taken preparing these particulars their accuracy
cannot be guaranteed and you should satisfy yourself as to their correctness. We have not been able to check outgoings, tenure, or that the services and equipment function properly, nor have we checked any planning or building regulations. They do not form part of any contract. We recommend that these matters and the title be checked by someone qualified to do so.

Viewing & Disclaimer

Viewing
Please contact us on 01323 737373 if you wish to arrange a viewing appointment for this property, or require further information.

Energy Performance Certificate
Click here to view the Energy Efficiency Rating and Environmental Impact Rating for this property.

Disclaimer
Hunt Frame - BN21 endeavour to maintain accurate depictions of properties in Virtual Tours, Floor Plans and descriptions, however, these are intended only as a guide and purchasers must satisfy themselves by personal inspection.

Key Features
  • VIRTUAL TOUR
  • OLD TOWN LOCATION
  • SEMI-DETACHED
  • TWO RECEPTIONS
  • KITCHEN & CLOAKROOM
  • THREE BEDROOMS
  • CORNER PLOT
  • SIDE & REAR GARDENS
  • OFF ROAD PARKING
  • CHAIN FREE
IE8 Alert! Cookie Alert!

To get the best possible experience using our website we recommend you upgrade to a modern web browser. More info

Location
Radius
Min Beds
Min Price
Min Price
Max Price
Max Price
Location
Radius
Min Beds
Min Price
Min Price
Max Price
Max Price