Refine Search
Location
Radius
Min Beds
Min Price
Min Price
Max Price
Max Price
Location
Radius
Min Beds
Min Price
Min Price
Max Price
Max Price
 

Dutchells Way, Eastbourne, BN22

Sold Subject To Contract

Offers over £500,000

5
3
3
Gallery (27)

Summary

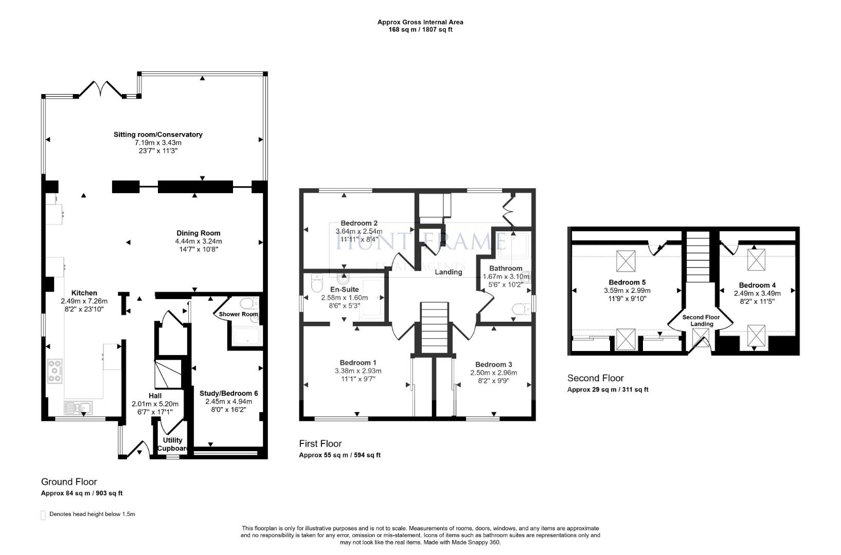
HUNT FRAME ESTATE AGENTS are proud to offer with a ** VIRTUAL TOUR** A STUNNING, TRANSFORMED FAMILY HOME having been SIGNIFICANTLY EXTENDED & IMPROVED with GARAGE & LOFT CONVERSIONS and LARGE CONSERVATORY to the rear, all which amounts to around 1800 sq ft of usable space. Internally the current owners have created WONDERFUL, VERSATILE FAMILY SPACE with upto SIX BEDROOMS. The LUXURY KITCHEN is a particular feature, as are the SPACIOUS DINING & SITTING ROOMS (conservatory). The property also enjoys THREE LOVELY BATHROOM FACILITIES, a STUDY/BEDROOM 6 and LANDSCAPED REAR GARDENS with AMPLE OFF ROAD PARKING to the front. This superb property comes highly recommended by sole selling agents Hunt Frame. This ideal family home is located in a prime area of Eastbourne, known as Lower Willingdon and is close proximity to a range of amenities, schools, shopping facilities, food/drink establishments and more. The area also offers excellent road and transport links for travel both locally and further afield.

Full Description

DETAILED ‘KEY FACTS FOR BUYERS’ ARE AVAILABLE IN THE LINK BELOW

Entrust Hunt Frame’s experienced property professionals with the sale or letting of your property, delivering the highest standards of service and communication.

ENTRANCE PORCH
Brick built porch with a composite entrance door, UPVC double glazed window to the side, open to the entrance hall.

ENTRANCE HALL
Contemporary radiator, second radiator, replacement laminate flooring, doorways to the kitchen and dining room, auto lighting, inner hall to the study/bedroom 6, under stairs storage cupboard, door to the utility cupboard, which currently houses a washing machine and dryer with a UPVC double glazed window to the front.

KITCHEN (7.26m x 2.49m (23'10 x 8'2))
Stunning refitted kitchen with an extensive range of floor standing and wall mounted cupboards with ample worktop space, inset ceramic sink unit with replacement instant hot water tap, fully tiled walls being part mosiac, Neff multi zone induction hob with contemporary extractor fan above, Hotpoint matching double ovens, concealed wall mounted boiler, designer radiator, space for an upright American style fridge/freezer with cupboards adjacent and above with a fitted coffee machine, dual aspect with UPVC double glazed windows to the front side elevations, open to the dining room.

DINING ROOM (4.45m x 3.25m (14'7 x 10'8))
Beautifully presented and decorated with a return doorway to the entrance hall, two openings to the conservatory/sitting room, radiator, replacement flooring, door way to the sitting room/conservatory.

SITTING ROOM/CONSERVATORY (7.19m x 3.43m (23'7 x 11'3))
Large solid roof conservatory extension (currently utilised as a sitting room) UPVC double glazed windows overlooking the rear garden, under floor heating and a radiator, two openings to the dining room, fitted storage, UPVC double opening french doors to the garden.

STUDY/BEDROOM 6 (4.93m x 2.44m (16'2 x 8'0))
(Converted from the garage) Currently used as a third reception but could easily be utilised as a bedroom, radiator, UPVC double glazed window to the front, door to the shower room.

SHOWER ROOM
Beautifully appointed shower room with an enclosed shower cubicle with a fitted shower unit, fully tiled walls, low level Wc with a concealed cistern, wash hand basin set on a vanity unit, mirrored cabinet, auto lighting.

LANDING
Staircase rising to the first floor with a re-configured layout which gives access to the three bedrooms and luxury bathroom, fitted storage cupboards, further under stairs storage cupboard, staircase rising to the second floor, UPVC double glazed window to the rear aspect.

BEDROOM 1 (3.38m x 2.92m (11'1 x 9'7))
Fitted mirrored fronted double wardrobes, radiator, UPVC double glazed window to the front aspect, doorway to the en-suite.

EN-SUITE
Large walk in shower cubicle being fully tiled with a fitted shower unit, vanity wash hand basin with a mirrored light above, low level Wc, ladder style radiator, fully tiled walls, tile effect flooring, UPVC double glazed window to the side aspect.

BEDROOM 2 (3.63m x 2.54m (11'11 x 8'4))
UPVC double glazed window to the rear aspect, radiator.

BEDROOM 3 (2.97m x 2.49m (9'9 x 8'2))
UPVC double glazed window to the front, radiator, part designer wood panelling to the walls, fitted mirror fronted double wardrobes.

LUXURY BATHROOM
Beautifully appointed designer bathroom with an enclosed shower cubicle with a twin headed shower/rainfall system, Victorian style radiator with towel rail, low level Wc with concealed cistern, oval wash hand basin sat on a vanity unit, fully tiled walls, mirror with light, extractor fan, replacement flooring, UPVC double glazed window to the side aspect.

SECOND FLOOR LANDING
Eaves storage access, Velux window to the front aspect, doors to bedrooms 4 & 5.

BEDROOM 4 (3.48m x 2.49m (11'5 x 8'2))
Eaves access, further storage cupboards, radiator, dual aspect with Velux windows to the front and rear elevations.

BEDROOM 5 (3.58m x 3.00m (11'9 x 9'10))
Eaves access, further storage cupboards, radiator, dual aspect with Velux windows to the front and rear elevations.

OUTSIDE - REAR GARDENS
The gardens have been landscaped by the current owners and consist in brief of a central area which as an artificial lawn, steps lead down to a private dining/entertaining area, side access to the front and a fitted storage unit to the other side of the house, fenced enclosed with planted borders to include a number of trees and shrubs which ensure a good level of privacy.

OFF ROAD PARKING
Block paved off road parking with three/four vehicles with a gated side storage area and EV charging point.

AGENTS NOTE:
The current owners have completion the major transformation of the property themselves and have created a lovely, spacious home which has been designed for versatile family use. Attention to detail and the use of high end fittings is exemplary and truly has to be seen to be appreciated. The garage conversion was completed and signed off in April 2009, planning no; B/089/1397. The loft conversion was completed and signed off in October 2013 planning no; F/123/0625

ANTI MONEY LAUNDERING REGULATIONS
By law, we are required to conduct anti-money laundering checks on all potential buyers and sellers, and we take this responsibility very seriously. In line with HMRC guidelines, our trusted partner, Coadjute, will securely manage these checks on our behalf. Once an offer is accepted (subject to contract), Coadjute will send a secure link for you to complete the biometric checks electronically. A non-refundable fee of £45+ VAT per person will apply for these checks, and Coadjute will handle the payment for this service. These anti-money laundering checks must be completed before we can send the memorandum of sale to the solicitors to confirm the sale. Please contact the office if you have any questions in relation to this.

Disclaimer: Whilst every care has been taken preparing these particulars their accuracy
cannot be guaranteed and you should satisfy yourself as to their correctness. We have not been able to check outgoings, tenure, or that the services and equipment function properly, nor have we checked any planning or building regulations. They do not form part of any contract. We recommend that these matters and the title be checked by someone qualified to do so.

Viewing & Disclaimer

Viewing
Please contact us on 01323 737373 if you wish to arrange a viewing appointment for this property, or require further information.

Energy Performance Certificate
Click here to view the Energy Efficiency Rating and Environmental Impact Rating for this property.

Disclaimer
Hunt Frame - BN21 endeavour to maintain accurate depictions of properties in Virtual Tours, Floor Plans and descriptions, however, these are intended only as a guide and purchasers must satisfy themselves by personal inspection.

Key Features
  • OFFERS IN EXCESS OF £500,000
  • STUNNING IMPROVED HOME
  • EXTENDED & LOFT CONVERSION
  • REFITTED KITCHEN
  • STUDY/BEDROOM 6
  • LUXURY BATHROOM & EN-SUITE
  • FIVE BEDROOMS
  • LANDSCAPED GARDENS
  • AMPLE OFF ROAD PARKING
  • VIRTUAL TOUR
IE8 Alert! Cookie Alert!

To get the best possible experience using our website we recommend you upgrade to a modern web browser. More info

Location
Radius
Min Beds
Min Price
Min Price
Max Price
Max Price
Location
Radius
Min Beds
Min Price
Min Price
Max Price
Max Price