Refine Search
Location
Radius
Min Beds
Min Price
Min Price
Max Price
Max Price
Location
Radius
Min Beds
Min Price
Min Price
Max Price
Max Price
 

Brassey Avenue, Eastbourne, BN22

Sold Subject To Contract

£270,000

3
1
1
Gallery (10)

Summary

A SPACIOUS, older style THREE BEDROOM, mid-terrace house which is very conveniently located close to Hampden Park railway station, local shops and bus routes. Benefitting from TWO SEPARATE RECEPTION ROOMS, KITCHEN, lawned rear garden and a GARAGE. Some updating required. Chain free.

Full Description

DETAILED ‘KEY FACTS FOR BUYERS’ ARE AVAILABLE IN THE LINK BELOW

Entrust Hunt Frame’s experienced property professionals with the sale or letting of your property, delivering the highest standards of service and communication.

Double glazed front door to:

Entrance Porch
Further door to:

Entrance Hall
Radiator, wood effect laminate flooring, under stirs cupboard, stairs rising to first floor.

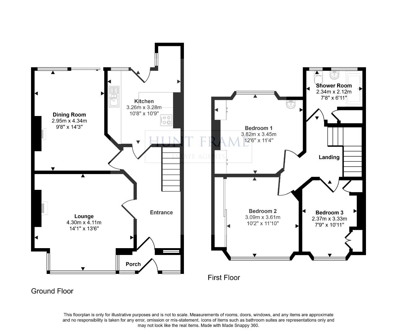
Lounge (4.29m x 4.11m (14'1 x 13'6))
Double glazed window to front, radiator, built in cupboard, TV point.

Dining Room (4.34m x 2.95m (14'3 x 9'8))
Radiator, picture rail, Original period style fireplace, double glazed sliding doors leading to rear garden.

Kitchen (3.28m x 3.25m (10'9 x 10'8))
In a range of wall and base mounted cupboards and drawers. Work tops with inset 1 1/2 bowl stainless steel sink and single drainer unit.. Breakfast bar, space for cooker and fridge/freezer, double glazed window and door to rear garden.

First Floor Landing
Spindled balustrade, access to loft space.

Bedroom One (3.66m x 3.45m (12'63 x 11'4))
Range of fitted wardrobes to one wall, radiator, double glazed window to front.

Bedroom Two (3.61m x 3.10m (11'10 x 10'2))
Two built in wardrobes, radiator, double glazed window to rear.

Bedroom Three (3.33m x 2.36m (10'11 x 7'9))
Two built in wardrobes, radiator, double glazed window to front.

Bathroom
Suite comprising large shower cubicle, pedestal wash basin, low level wc, radiator, two double glazed windows to rear.

Wall enclosed front garden, laid as patio.

Rear Garden - Brick paved patio adjacent to the rear of the propert, two brick built storage sheds, area of lawn and flower beds, Timber workshop/studio (21'9 x 7'8) with power and light, gated rear access.

GARAGE - situated at the rear of the property.

AGENTS NOTE
By law, we are required to conduct anti-money laundering checks on all potential buyers and sellers, and we take this responsibility very seriously. In line with HMRC guidelines, our trusted partner, Coadjute, will securely manage these checks on our behalf. Coadjute will send a secure link for you to complete the biometric checks electronically. A fee of £45+ VAT per person will apply for these checks. These anti-money laundering checks must be completed before we can commence marketing or issue a sales memo. Please contact the office if you have any questions in relation to this.

Disclaimer: Whilst every care has been taken preparing these particulars their accuracy
cannot be guaranteed and you should satisfy yourself as to their correctness. We have not been able to check outgoings, tenure, or that the services and equipment function properly, nor have we checked any planning or building regulations. They do not form part of any contract. We recommend that these matters and the title be checked by someone qualified to do so.

Viewing & Disclaimer

Viewing
Please contact us on 01323 737373 if you wish to arrange a viewing appointment for this property, or require further information.

Disclaimer
Hunt Frame - BN21 endeavour to maintain accurate depictions of properties in Virtual Tours, Floor Plans and descriptions, however, these are intended only as a guide and purchasers must satisfy themselves by personal inspection.

Key Features
  • OLDER STYLE MID-TERRACE HOUSE
  • TWO RECEPTION ROOMS
  • THREE BEDROOMS
  • GAS CENTRAL HEATING
  • DOUBLE GLAZING
  • LAWNED REAR GARDEN
  • WORKSHOP
  • GARAGE
  • CLOSE TO HAMPDEN PARK RAILWAY STATION
  • VIRTUAL TOUR
IE8 Alert! Cookie Alert!

To get the best possible experience using our website we recommend you upgrade to a modern web browser. More info

Location
Radius
Min Beds
Min Price
Min Price
Max Price
Max Price
Location
Radius
Min Beds
Min Price
Min Price
Max Price
Max Price